Dorpsstraat 245-A, Scherpenzeel

Huurprijs: Op aanvraag Huurprijs per maand excl. energie en servicekosten

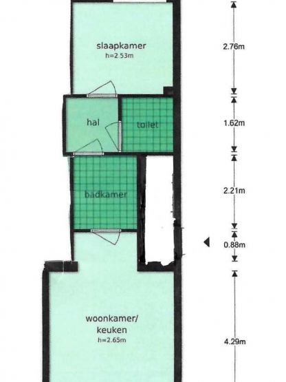
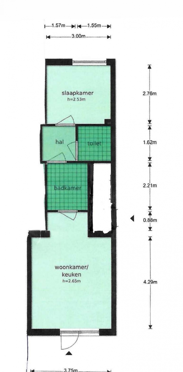
Twee- kamer woning in het Centrum

In het centrum van Scherpenzeel komt te huur binnenkort deze (kleine) Twee-kamer woning gelegen op de 1e verdieping. 

Deze woning is geschikt voor 1-persoons-bewoning en bestaande uit.

Gezamenlijk: Ingang, trapopgang en royaal Dakterras.

Privé: Woonkamer met keukenopstelling en openslaande tuindeuren met toegang naar dakterras, Badkamer voorzien van douche, wastafel,  Hal / portaal, Toilet met aansluiting voor wasmachine en Slaapkamer.

Huurprijs op aanvraag !

Totaal woonoppervlak 38 m2.  Huurprijs is exclusief voorschot Energie, TV, Internet € 175,00 per maand en Servicekosten € 25.00 per maand.

Rustige en nette bewoning is een vereiste !

Huurcheck en inkomenstoets van toepassing.

Huurtermijn voor ca 3 of 4 jaar.

Borgsom is van toepassing.

Huisdieren zijn niet toegestaan.

Aanvaarding op korte termijn.

Meer informatie of bezichtiging aanvragen?

Neem contact met ons op

Deskundig

Betrouwbaar

Persoonlijk

Naar overzicht woningaanbod